• 東京の賃貸を23区・都下から探す
  • 東京の賃貸を路線・駅名から探す
  • 東京の賃貸を学校から探す

40,000件以上の賃貸物件を、すいすい検索

物件詳細

お荷物の多い方におすすめの賃貸マンション・文京区湯島1丁目。K32104

食器棚や収納4ヶ所など収納スペースが豊富・最上階・角部屋3面窓・バルコニー2ヶ所・独立洗面台・バストイレ別・洗濯機置場あり・ガスキッチン

物件番号:K32104

所在地

東京都文京区湯島1丁目


地図サンプル 物件周辺の地図を表示する

周辺情報をピンポイント表示!街選びに便利な機能です。+ボタンで縮尺を変更すると、更に詳しく表示されます。
※左の図はサンプルです。

路線/駅
  • JR中央線 御茶ノ水 徒歩6分
  • JR総武線 御茶ノ水 徒歩6分
  • 都営大江戸線 本郷三丁目 徒歩10分
  • 丸ノ内線 本郷三丁目 徒歩10分
  • 丸ノ内線 御茶ノ水 徒歩6分
  • 千代田線 新御茶ノ水 徒歩6分
  • 銀座線 末広町 徒歩7分
近隣学校
  • 順天堂大学 本郷キャンパス 417m
  • 東京科学大学(旧・東京医科歯科大学)湯島・駿河台キャンパス 167m
  • 東京大学 本郷キャンパス 1167m
  • 東洋学園大学 本郷キャンパス 850m
  • 東京医療秘書福祉専門学校 467m
  • 鹿屋体育大学 東京サテライトキャンパス 500m
 
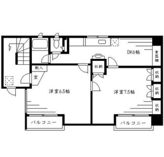
面積/間取り 51.04m²/2DK
DK  6帖
洋室  7.5帖
洋室  6.5帖
賃料/管理費等 102,000円/5,000円
敷金/礼金 敷金 1ヶ月/ 礼金 1ヶ月
保証金:0ヶ月
償却:0ヶ月
築年数/改築工事 築1988年/
物件種別 マンション (RC)
所在階/階数 5階/5階建
引渡し 即入居可
採光位置 南東向き
位置 2階以上 最上階 角部屋  
条件 保証人不要  
キッチン キッチン設備有 システムキッチン ガスコンロ コンロ2口以上  
バス/トイレ 専用バス 専用トイレ バス・トイレ別 追い焚き シャワー 独立洗面台  
冷暖房 エアコン  
収納 収納付  
放送/通信  
セキュリティ  
その他の設備 洗濯機置き場あり フローリング バルコニー 駐輪場あり タイル貼り  
その他条件  
備考 バルコニー2ヶ所
水道料金:月額3000円、保険料:加入必須、更新料:新賃料1ヶ月 
物件番号 K32104
情報公開日 2025年10月30日NEW
東京都文京区湯島1丁目 賃貸マンション 2DK
東京都文京区湯島1丁目 賃貸マンション 2DK

その他の写真

この物件情報を携帯に送る
携帯で左のQRコードを読みとってください。また、下のフォームからご指定のアドレスに情報をメールで送ることもできます。

各種情報と現況に差異がある場合、現況優先となります。

03-5940-4888

担当者のご指名も承っておりますので、
ご希望の担当者がおりましたらお問合せ時にお申し付けください。
※担当のスケジュール状況等によっては担当指名のご希望に沿えない場合もございます。
何卒ご理解の程よろしくお願い申し上げます。

前のページに戻る
ページトップへ戻る

 

東京の賃貸検索結果で、納得いくお部屋が見つからない方、必見!

≪総合仲介システムのご案内≫
弊社は、全国の不動産会社が個別に持つ空室情報を、業者間の流通システムを通して、
住みたい街の不動産屋さんは勿論、大手賃貸の管理会社様まで、
常時 数百万件以上の最新で正確な情報をご紹介しています。
★何度もお部屋探しの為、不動産会社へ来店する事が難しい方に、
おすすめの便利なシステムです。

検索結果で、希望のお部屋が見つからない方!ご安心ください。
お手数ですが、こちらの【賃貸物件お探しサービス】よりお気軽にお問合せください。

毎日、最新の物件情報を登録しておりますが、情報量が多く、日々変化する為、
全てを登録する事が出来ません!
★是非、貴方のこだわりをお聞かせください♪