• 東京の賃貸を23区・都下から探す
  • 東京の賃貸を路線・駅名から探す
  • 東京の賃貸を学校から探す

40,000件以上の賃貸物件を、すいすい検索

物件詳細

新社会人の方におすすめな賃貸マンション・豊島区南大塚1丁目・BB2552

常時ゴミ出し可能・浴室乾燥機・温水洗浄便座・独立洗面台・バストイレ別・室内洗濯機置き場・収納・フローリング・モニター付きインターホン・オートロック・エレベータ―・宅配BOX

物件番号:BB2552

所在地

東京都豊島区南大塚1丁目


地図サンプル 物件周辺の地図を表示する

周辺情報をピンポイント表示!街選びに便利な機能です。+ボタンで縮尺を変更すると、更に詳しく表示されます。
※左の図はサンプルです。

路線/駅
  • JR山手線 大塚 徒歩5分
  • JR山手線 巣鴨 徒歩8分
  • 都営三田線 巣鴨 徒歩8分
  • 丸ノ内線 新大塚 徒歩10分
  • 都電荒川線 大塚駅前 徒歩5分
近隣学校
  • お茶の水女子大学 1517m
  • 東洋大学 白山キャンパス 2167m
  • 東邦音楽短期大学 文京キャンパス 950m
  • 東京服飾専門学校 717m
  • 日本女子大学 目白キャンパス 2417m
  • 東京国際大学 池袋キャンパス 1233m
 
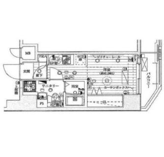
面積/間取り 20.47m²/1R
洋室  5.9帖
K  2帖
賃料/管理費等 85,000円/8,000円
敷金/礼金 敷金 0ヶ月/ 礼金 1ヶ月
保証金:0ヶ月
償却:0ヶ月
築年数/改築工事 築2014年/
物件種別 マンション (RC)
所在階/階数 2階/10階建
引渡し 2026年2月下旬入居可能
採光位置 --向き
位置 2階限定 2階以上  
条件 保証人不要 分譲賃貸マンション  
キッチン キッチン設備有 システムキッチン ガスコンロ コンロ2口以上  
バス/トイレ 専用バス 専用トイレ バス・トイレ別 シャワー 独立洗面台 浴室乾燥機 シャワートイレ  
冷暖房 エアコン  
収納 収納付  
放送/通信 CATV CSアンテナ BSアンテナ 光ファイバー 高速インターネット  
セキュリティ オートロック TVドアホン 宅配ボックス  
その他の設備 エレベーター 室内洗濯機置き場 洗濯機置き場あり フローリング バルコニー 駐輪場あり バイク置き場あり タイル貼り  
その他条件  
備考 保証会社加入必須(初回保証料:月額賃料と共益費等の50%~、継続保証料:総賃料の1%)、24時間サポート:1.65万円、書類作成費:11,000円、保険料:2万円(2年更新)、抗菌:1.65万円、鍵交換:2.5万円、室内清掃費:4.3万円、更新料:月額賃料1ヶ月 
物件番号 BB2552
情報公開日 2025年11月4日NEW
東京都豊島区南大塚1丁目 賃貸マンション 1R
東京都豊島区南大塚1丁目 賃貸マンション 1R

その他の写真

この物件情報を携帯に送る
携帯で左のQRコードを読みとってください。また、下のフォームからご指定のアドレスに情報をメールで送ることもできます。

各種情報と現況に差異がある場合、現況優先となります。

03-5940-4888

担当者のご指名も承っておりますので、
ご希望の担当者がおりましたらお問合せ時にお申し付けください。
※担当のスケジュール状況等によっては担当指名のご希望に沿えない場合もございます。
何卒ご理解の程よろしくお願い申し上げます。

前のページに戻る
ページトップへ戻る

 

東京の賃貸検索結果で、納得いくお部屋が見つからない方、必見!

≪総合仲介システムのご案内≫
弊社は、全国の不動産会社が個別に持つ空室情報を、業者間の流通システムを通して、
住みたい街の不動産屋さんは勿論、大手賃貸の管理会社様まで、
常時 数百万件以上の最新で正確な情報をご紹介しています。
★何度もお部屋探しの為、不動産会社へ来店する事が難しい方に、
おすすめの便利なシステムです。

検索結果で、希望のお部屋が見つからない方!ご安心ください。
お手数ですが、こちらの【賃貸物件お探しサービス】よりお気軽にお問合せください。

毎日、最新の物件情報を登録しておりますが、情報量が多く、日々変化する為、
全てを登録する事が出来ません!
★是非、貴方のこだわりをお聞かせください♪