• 東京の賃貸を23区・都下から探す
  • 東京の賃貸を路線・駅名から探す
  • 東京の賃貸を学校から探す

40,000件以上の賃貸物件を、すいすい検索

物件詳細

ふたり暮らし相談可能のマンション賃貸・豊島区北大塚3丁目。K32369

洋室10.5帖・南向きバルコニー・最上階・モニター付きインターホン・洗面台独立・洗濯機置場あり・バストイレ別

物件番号:K32369

所在地

東京都豊島区北大塚3丁目


地図サンプル 物件周辺の地図を表示する

周辺情報をピンポイント表示!街選びに便利な機能です。+ボタンで縮尺を変更すると、更に詳しく表示されます。
※左の図はサンプルです。

路線/駅
  • JR山手線 大塚 徒歩5分
  • 都電荒川線 巣鴨新田 徒歩5分
近隣学校
  • 駿台トラベル&ホテル専門学校 1214m
  • 大正大学 857m
  • 東京服飾専門学校 1186m
  • 東京国際大学 池袋キャンパス 757m
 
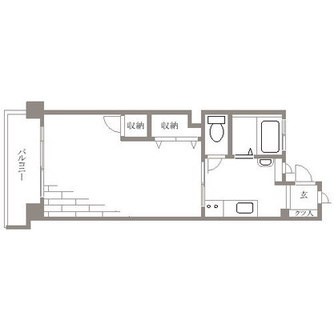
面積/間取り 30m²/1K
洋室  10.5帖
K  3帖
賃料/管理費等 90,000円/5,000円
敷金/礼金 敷金 1ヶ月/ 礼金 0ヶ月
保証金:0ヶ月
償却:0ヶ月
築年数/改築工事 築1967年/
物件種別 マンション (RC)
所在階/階数 4階/4階建
引渡し 相談
採光位置 南向き
位置 2階以上 最上階  
条件 ルームシェア相談 保証人不要  
キッチン キッチン設備有 ガスコンロ コンロ2口以上  
バス/トイレ 専用バス 専用トイレ バス・トイレ別 シャワー 独立洗面台  
冷暖房 エアコン  
収納 収納付  
放送/通信  
セキュリティ TVドアホン  
その他の設備 洗濯機置き場あり バルコニー  
その他条件  
備考 定期借家契約2年
保険料:2.1万円(2年毎)、鍵交換:1.98万円、保証会社加入必須(初回保証料:月額総支払額の50%~、口座振替手数料:月額330円、継続保証料:1年毎に1万円) 
物件番号 K32369
情報公開日 2026年1月12日NEW
東京都豊島区北大塚3丁目 賃貸マンション 1K
東京都豊島区北大塚3丁目 賃貸マンション 1K

その他の写真

この物件情報を携帯に送る
携帯で左のQRコードを読みとってください。また、下のフォームからご指定のアドレスに情報をメールで送ることもできます。

各種情報と現況に差異がある場合、現況優先となります。

03-5940-4888

担当者のご指名も承っておりますので、
ご希望の担当者がおりましたらお問合せ時にお申し付けください。
※担当のスケジュール状況等によっては担当指名のご希望に沿えない場合もございます。
何卒ご理解の程よろしくお願い申し上げます。

前のページに戻る
ページトップへ戻る

 

東京の賃貸検索結果で、納得いくお部屋が見つからない方、必見!

≪総合仲介システムのご案内≫
弊社は、全国の不動産会社が個別に持つ空室情報を、業者間の流通システムを通して、
住みたい街の不動産屋さんは勿論、大手賃貸の管理会社様まで、
常時 数百万件以上の最新で正確な情報をご紹介しています。
★何度もお部屋探しの為、不動産会社へ来店する事が難しい方に、
おすすめの便利なシステムです。

検索結果で、希望のお部屋が見つからない方!ご安心ください。
お手数ですが、こちらの【賃貸物件お探しサービス】よりお気軽にお問合せください。

毎日、最新の物件情報を登録しておりますが、情報量が多く、日々変化する為、
全てを登録する事が出来ません!
★是非、貴方のこだわりをお聞かせください♪