• 東京の賃貸を23区・都下から探す
  • 東京の賃貸を路線・駅名から探す
  • 東京の賃貸を学校から探す

40,000件以上の賃貸物件を、すいすい検索

物件詳細

サービスルーム付きマンション賃貸・荒川区西日暮里2丁目。K32487

角部屋2面採光・3口システムガスキッチン・温水洗浄便座・洗面台独立・脱衣室・追い焚きバス・浴室乾燥機・モニター付きドアホン・宅配ボックス

物件番号:K32487

所在地

東京都荒川区西日暮里2丁目


地図サンプル 物件周辺の地図を表示する

周辺情報をピンポイント表示!街選びに便利な機能です。+ボタンで縮尺を変更すると、更に詳しく表示されます。
※左の図はサンプルです。

路線/駅
  • JR山手線 西日暮里 徒歩3分
  • JR山手線 日暮里 徒歩6分
  • JR京浜東北線 西日暮里 徒歩3分
  • JR京浜東北線 日暮里 徒歩6分
  • JR常磐線 日暮里 徒歩6分
  • 京成本線 日暮里 徒歩6分
  • 千代田線 西日暮里 徒歩3分
  • 日暮里舎人ライナー 日暮里 徒歩6分
  • 日暮里舎人ライナー 西日暮里 徒歩3分
近隣学校
  • 中央動物専門学校 969m
  • 東京芸術大学 上野キャンパス 1338m
  • 道灌山学園保育福祉専門学校 677m
  • 東京ニットファッションアカデミー 446m
  • 国際理容美容専門学校 2号館 354m
  • 国際理容美容専門学校 4号館 723m
 
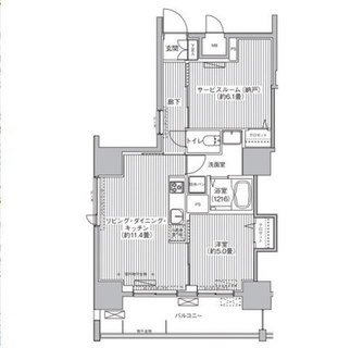
面積/間取り 52.25m²/1SLDK
LDK  11.4帖
洋室  5帖
納戸(S)  6.1帖
賃料/管理費等 207,000円/8,000円
敷金/礼金 敷金 1ヶ月/ 礼金 1ヶ月
保証金:0ヶ月
償却:0ヶ月
築年数/改築工事 築2020年/
物件種別 マンション (RC)
所在階/階数 6階/14階建
引渡し 相談
採光位置 南東向き
位置 2階以上 角部屋  
条件 保証人不要  
キッチン キッチン設備有 システムキッチン ガスコンロ コンロ2口以上  
バス/トイレ 専用バス 専用トイレ バス・トイレ別 追い焚き シャワー 独立洗面台 浴室乾燥機 シャワートイレ  
冷暖房 エアコン  
収納 収納付  
放送/通信 CSアンテナ BSアンテナ 光ファイバー 高速インターネット  
セキュリティ オートロック TVドアホン 宅配ボックス  
その他の設備 エレベーター 室内洗濯機置き場 洗濯機置き場あり フローリング バルコニー 駐輪場あり 駐車場あり タイル貼り  
その他条件  
備考 インターネット無料
保証会社加入必須(初回保証料:月額賃料と共益費等総額の40%~70%、月次保証料:月額賃料と共益費等総額の1%、継続保証料:2年毎に更新料の1%)、保険料:加入必須、鍵交換:2.2万円、更新料:新賃料1ヶ月 
物件番号 K32487
情報公開日 2026年2月6日NEW
東京都荒川区西日暮里2丁目 賃貸マンション 1SLDK
東京都荒川区西日暮里2丁目 賃貸マンション 1SLDK

その他の写真

この物件情報を携帯に送る
携帯で左のQRコードを読みとってください。また、下のフォームからご指定のアドレスに情報をメールで送ることもできます。

各種情報と現況に差異がある場合、現況優先となります。

03-5940-4888

担当者のご指名も承っておりますので、
ご希望の担当者がおりましたらお問合せ時にお申し付けください。
※担当のスケジュール状況等によっては担当指名のご希望に沿えない場合もございます。
何卒ご理解の程よろしくお願い申し上げます。

前のページに戻る
ページトップへ戻る

 

東京の賃貸検索結果で、納得いくお部屋が見つからない方、必見!

≪総合仲介システムのご案内≫
弊社は、全国の不動産会社が個別に持つ空室情報を、業者間の流通システムを通して、
住みたい街の不動産屋さんは勿論、大手賃貸の管理会社様まで、
常時 数百万件以上の最新で正確な情報をご紹介しています。
★何度もお部屋探しの為、不動産会社へ来店する事が難しい方に、
おすすめの便利なシステムです。

検索結果で、希望のお部屋が見つからない方!ご安心ください。
お手数ですが、こちらの【賃貸物件お探しサービス】よりお気軽にお問合せください。

毎日、最新の物件情報を登録しておりますが、情報量が多く、日々変化する為、
全てを登録する事が出来ません!
★是非、貴方のこだわりをお聞かせください♪