• 東京の賃貸を23区・都下から探す
  • 東京の賃貸を路線・駅名から探す
  • 東京の賃貸を学校から探す

40,000件以上の賃貸物件を、すいすい検索

物件詳細

温水洗浄便座のアパート賃貸・文京区白山4丁目。K32541

1953年2月築・1989年2月床壁建具など内装改装工事済み・バストイレ別・洗濯機置場あり・ガスキッチン・収納2ヶ所・角部屋3面採光

物件番号:K32541

所在地

東京都文京区白山4丁目


地図サンプル 物件周辺の地図を表示する

周辺情報をピンポイント表示!街選びに便利な機能です。+ボタンで縮尺を変更すると、更に詳しく表示されます。
※左の図はサンプルです。

路線/駅
  • 都営三田線 白山 徒歩8分
  • 都営三田線 千石 徒歩11分
  • 南北線 本駒込 徒歩14分
近隣学校
  • 尚美ミュージックカレッジ専門学校 1400m
  • 東洋大学 白山キャンパス 214m
  • 日本医科大学 千駄木校舎 929m
  • 筑波大学 東京キャンパス文京校舎 800m
 
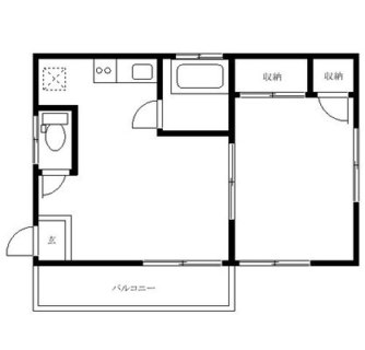
面積/間取り 30m²/1LDK
LDK  8帖
和室  6帖
賃料/管理費等 68,000円/6,000円
敷金/礼金 敷金 1ヶ月/ 礼金 1ヶ月
保証金:0ヶ月
償却:0ヶ月
築年数/改築工事 築1989年/改築工事済
物件種別 アパート (木造)
所在階/階数 2階/2階建
引渡し 即入居可
採光位置 南向き
位置 2階限定 2階以上 最上階 角部屋  
条件 ルームシェア相談 保証人不要  
キッチン キッチン設備有 ガスコンロ コンロ2口以上  
バス/トイレ 専用バス 専用トイレ バス・トイレ別 追い焚き シャワー シャワートイレ  
冷暖房 エアコン  
収納 収納付  
放送/通信  
セキュリティ  
その他の設備 洗濯機置き場あり フローリング バルコニー  
その他条件  
備考 保険料:1.9万円(2年毎)、更新料:新賃料1.5ヶ月、保証会社加入必須(初回保証料:月額総支払額の50%~、口座振替手数料:月額330円、継続保証料:1年毎に1万円) 
物件番号 K32541
情報公開日 2026年2月14日NEW
東京都文京区白山4丁目 賃貸アパート 1LDK

その他の写真

この物件情報を携帯に送る
携帯で左のQRコードを読みとってください。また、下のフォームからご指定のアドレスに情報をメールで送ることもできます。

各種情報と現況に差異がある場合、現況優先となります。

03-5940-4888

担当者のご指名も承っておりますので、
ご希望の担当者がおりましたらお問合せ時にお申し付けください。
※担当のスケジュール状況等によっては担当指名のご希望に沿えない場合もございます。
何卒ご理解の程よろしくお願い申し上げます。

前のページに戻る
ページトップへ戻る

 

東京の賃貸検索結果で、納得いくお部屋が見つからない方、必見!

≪総合仲介システムのご案内≫
弊社は、全国の不動産会社が個別に持つ空室情報を、業者間の流通システムを通して、
住みたい街の不動産屋さんは勿論、大手賃貸の管理会社様まで、
常時 数百万件以上の最新で正確な情報をご紹介しています。
★何度もお部屋探しの為、不動産会社へ来店する事が難しい方に、
おすすめの便利なシステムです。

検索結果で、希望のお部屋が見つからない方!ご安心ください。
お手数ですが、こちらの【賃貸物件お探しサービス】よりお気軽にお問合せください。

毎日、最新の物件情報を登録しておりますが、情報量が多く、日々変化する為、
全てを登録する事が出来ません!
★是非、貴方のこだわりをお聞かせください♪