• 東京の賃貸を23区・都下から探す
  • 東京の賃貸を路線・駅名から探す
  • 東京の賃貸を学校から探す

40,000件以上の賃貸物件を、すいすい検索

物件詳細

最上階角部屋の賃貸アパート・中野区上高田5丁目。K32574

2面採光・フローリング・2口ガスキッチン・室内洗濯機置場・バストイレ別・礼金0ヶ月・モニター付きインターホン・敷地内ごみ置き場・保証会社利用可能

物件番号:K32574

所在地

東京都中野区上高田5丁目


地図サンプル 物件周辺の地図を表示する

周辺情報をピンポイント表示!街選びに便利な機能です。+ボタンで縮尺を変更すると、更に詳しく表示されます。
※左の図はサンプルです。

路線/駅
  • 西武新宿線 新井薬師前 徒歩2分
近隣学校
  • 国際短期大学 1329m
  • 目白大学 新宿キャンパス 686m
  • 目白大学短期大学部 686m
  • アポロ歯科衛生士専門学校 500m
 
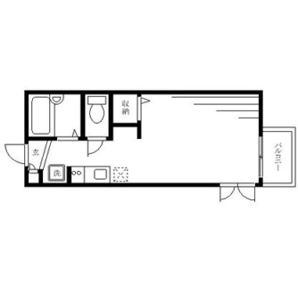
面積/間取り 19.87m²/1R
洋室  6帖
K  2帖
賃料/管理費等 68,000円/2,000円
敷金/礼金 敷金 1ヶ月/ 礼金 0ヶ月
保証金:0ヶ月
償却:0ヶ月
築年数/改築工事 築2001年/
物件種別 アパート (軽量鉄骨)
所在階/階数 2階/2階建
引渡し 2026年3月下旬入居可能
採光位置 東向き
位置 2階限定 2階以上 最上階 角部屋  
条件 保証人不要  
キッチン キッチン設備有 ガスコンロ コンロ2口以上  
バス/トイレ 専用バス 専用トイレ バス・トイレ別 シャワー  
冷暖房 エアコン  
収納 収納付  
放送/通信 光ファイバー 高速インターネット  
セキュリティ TVドアホン  
その他の設備 室内洗濯機置き場 洗濯機置き場あり フローリング バルコニー 駐車場あり  
その他条件  
備考 敷地内ごみ置き場
定期借家契約2年
24Hサポート:2.6万円(2年毎)、保険料:2万円(2年毎)、鍵交換:1.76万円 
物件番号 K32574
情報公開日 2026年2月20日NEW
東京都中野区上高田5丁目 賃貸アパート 1R

その他の写真

東京都中野区上高田5丁目 賃貸アパート 1R 東京都中野区上高田5丁目 賃貸アパート 1R
この物件情報を携帯に送る
携帯で左のQRコードを読みとってください。また、下のフォームからご指定のアドレスに情報をメールで送ることもできます。

各種情報と現況に差異がある場合、現況優先となります。

03-5940-4888

担当者のご指名も承っておりますので、
ご希望の担当者がおりましたらお問合せ時にお申し付けください。
※担当のスケジュール状況等によっては担当指名のご希望に沿えない場合もございます。
何卒ご理解の程よろしくお願い申し上げます。

前のページに戻る
ページトップへ戻る

 

東京の賃貸検索結果で、納得いくお部屋が見つからない方、必見!

≪総合仲介システムのご案内≫
弊社は、全国の不動産会社が個別に持つ空室情報を、業者間の流通システムを通して、
住みたい街の不動産屋さんは勿論、大手賃貸の管理会社様まで、
常時 数百万件以上の最新で正確な情報をご紹介しています。
★何度もお部屋探しの為、不動産会社へ来店する事が難しい方に、
おすすめの便利なシステムです。

検索結果で、希望のお部屋が見つからない方!ご安心ください。
お手数ですが、こちらの【賃貸物件お探しサービス】よりお気軽にお問合せください。

毎日、最新の物件情報を登録しておりますが、情報量が多く、日々変化する為、
全てを登録する事が出来ません!
★是非、貴方のこだわりをお聞かせください♪