• 東京の賃貸を23区・都下から探す
  • 東京の賃貸を路線・駅名から探す
  • 東京の賃貸を学校から探す

40,000件以上の賃貸物件を、すいすい検索

物件詳細

8万円台アパート賃貸情報・千代田区神田神保町3丁目。K32586

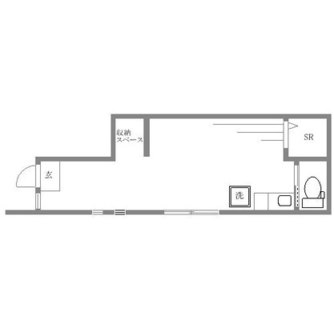
2012年4月築・フローリング・洋室7帖・専用シャワールーム、トイレ別々・温水洗浄便座・システムガスキッチン・収納スペース

物件番号:K32586

所在地

東京都千代田区神田神保町3丁目


地図サンプル 物件周辺の地図を表示する

周辺情報をピンポイント表示!街選びに便利な機能です。+ボタンで縮尺を変更すると、更に詳しく表示されます。
※左の図はサンプルです。

路線/駅
  • 都営三田線 神保町 徒歩3分
  • 東西線 九段下 徒歩2分
  • 都営新宿線 九段下 徒歩2分
  • 都営新宿線 神保町 徒歩3分
  • 半蔵門線 九段下 徒歩2分
  • 半蔵門線 神保町 徒歩3分
近隣学校
  • LEC東京リーガルマインド大学院大学 600m
  • 共立女子大学 神田一ツ橋キャンパス 314m
  • 共立女子短期大学 神田一ツ橋キャンパス 314m
  • 専修大学 神田キャンパス 286m
  • 日本大学 法学部(神田三崎町キャンパス) 600m
  • 日本歯科大学東京短期大学 929m
  • 明治大学 駿河台キャンパス 714m
  • 大原医療秘書福祉専門学校東京校 329m
 
面積/間取り 16.32m²/1R
洋室  7帖
賃料/管理費等 80,000円/5,000円
敷金/礼金 敷金 0ヶ月/ 礼金 0ヶ月
保証金:0ヶ月
償却:0ヶ月
築年数/改築工事 築2012年/
物件種別 アパート (木造)
所在階/階数 1階/2階建
引渡し 2026年4月中旬入居可能
採光位置 南向き
位置 1階限定 角部屋  
条件 保証人不要  
キッチン キッチン設備有 システムキッチン ガスコンロ  
バス/トイレ 専用トイレ バス・トイレ別 シャワー 浴室乾燥機 シャワートイレ  
冷暖房 エアコン  
収納 収納付  
放送/通信 CATV 光ファイバー 高速インターネット  
セキュリティ TVドアホン  
その他の設備 室内洗濯機置き場 洗濯機置き場あり フローリング  
その他条件  
備考 専用シャワールーム
保険料:1.8万円(2年毎)、室内清掃費:3.85万円、更新料:新賃料1.55ヶ月、保証会社加入必須(初回保証料:月額総支払額の50%~、月次保証料:月額総支払額の1%) 
物件番号 K32586
情報公開日 2026年2月21日NEW
東京都千代田区神田神保町3丁目 賃貸アパート 1R

その他の写真

この物件情報を携帯に送る
携帯で左のQRコードを読みとってください。また、下のフォームからご指定のアドレスに情報をメールで送ることもできます。

各種情報と現況に差異がある場合、現況優先となります。

03-5940-4888

担当者のご指名も承っておりますので、
ご希望の担当者がおりましたらお問合せ時にお申し付けください。
※担当のスケジュール状況等によっては担当指名のご希望に沿えない場合もございます。
何卒ご理解の程よろしくお願い申し上げます。

前のページに戻る
ページトップへ戻る

 

東京の賃貸検索結果で、納得いくお部屋が見つからない方、必見!

≪総合仲介システムのご案内≫
弊社は、全国の不動産会社が個別に持つ空室情報を、業者間の流通システムを通して、
住みたい街の不動産屋さんは勿論、大手賃貸の管理会社様まで、
常時 数百万件以上の最新で正確な情報をご紹介しています。
★何度もお部屋探しの為、不動産会社へ来店する事が難しい方に、
おすすめの便利なシステムです。

検索結果で、希望のお部屋が見つからない方!ご安心ください。
お手数ですが、こちらの【賃貸物件お探しサービス】よりお気軽にお問合せください。

毎日、最新の物件情報を登録しておりますが、情報量が多く、日々変化する為、
全てを登録する事が出来ません!
★是非、貴方のこだわりをお聞かせください♪