• 東京の賃貸を23区・都下から探す
  • 東京の賃貸を路線・駅名から探す
  • 東京の賃貸を学校から探す

40,000件以上の賃貸物件を、すいすい検索

物件詳細

3口IHコンロ付きの分譲賃貸マンション・新宿区西落合4丁目・RR463

24時間ゴミ出し可能・角部屋・温水洗浄便座・独立洗面所・3面採光・インターネット対応・食器洗浄便座・3面採光

物件番号:RR463

所在地

東京都新宿区西落合4丁目


地図サンプル 物件周辺の地図を表示する

周辺情報をピンポイント表示!街選びに便利な機能です。+ボタンで縮尺を変更すると、更に詳しく表示されます。
※左の図はサンプルです。

路線/駅
  • 西武池袋線 東長崎 徒歩10分
  • 都営大江戸線 落合南長崎 徒歩13分
  • 都営大江戸線 新江古田 徒歩8分
近隣学校
  • 国際短期大学 1462m
  • 武蔵大学 1338m
  • 武蔵野音楽大学 江古田キャンパス 1538m
  • 目白大学短期大学部 1446m
  • 日本大学 芸術学部(江古田校舎) 1062m
 
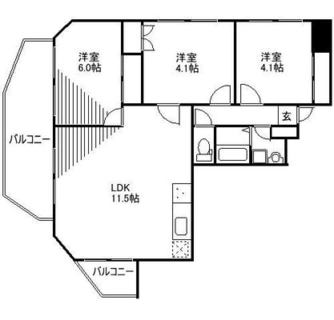
面積/間取り 61.28m²/3LDK
LDK  11.5帖
洋室  6帖
洋室  5.9帖
洋室  4.1帖
賃料/管理費等 250,000円/管理費なし
敷金/礼金 敷金 1ヶ月/ 礼金 1ヶ月
保証金:0ヶ月
償却:0ヶ月
築年数/改築工事 築1996年/
物件種別 マンション (SRC)
所在階/階数 6階/12階建
引渡し 即入居可
採光位置 --向き
位置 2階以上 角部屋  
条件 保証人不要 分譲賃貸マンション  
キッチン キッチン設備有 システムキッチン IHクッキングヒーター 独立キッチン カウンターキッチン  
バス/トイレ 専用バス 専用トイレ バス・トイレ別 追い焚き シャワー 独立洗面台 浴室乾燥機 シャワートイレ  
冷暖房 エアコン  
収納 収納付  
放送/通信 光ファイバー 高速インターネット  
セキュリティ オートロック TVドアホン  
その他の設備 エレベーター 室内洗濯機置き場 洗濯機置き場あり フローリング バルコニー  
その他条件  
備考 保証会社加入必須(初回保証料:月額総支払額の50%~、継続保証料:1年毎に1万円)保険料:2.0万円(2年毎)、鍵交換:3.3万円、更新料:新賃料1ヶ月、24時間サポート:1.65万円、室内除菌費用:1.65万円 
物件番号 RR463
情報公開日 2026年4月24日NEW
東京都新宿区西落合4丁目 賃貸マンション 3LDK
東京都新宿区西落合4丁目 賃貸マンション 3LDK

その他の写真

この物件情報を携帯に送る
携帯で左のQRコードを読みとってください。また、下のフォームからご指定のアドレスに情報をメールで送ることもできます。

各種情報と現況に差異がある場合、現況優先となります。

03-5940-4888

担当者のご指名も承っておりますので、
ご希望の担当者がおりましたらお問合せ時にお申し付けください。
※担当のスケジュール状況等によっては担当指名のご希望に沿えない場合もございます。
何卒ご理解の程よろしくお願い申し上げます。

前のページに戻る
ページトップへ戻る

 

東京の賃貸検索結果で、納得いくお部屋が見つからない方、必見!

≪総合仲介システムのご案内≫
弊社は、全国の不動産会社が個別に持つ空室情報を、業者間の流通システムを通して、
住みたい街の不動産屋さんは勿論、大手賃貸の管理会社様まで、
常時 数百万件以上の最新で正確な情報をご紹介しています。
★何度もお部屋探しの為、不動産会社へ来店する事が難しい方に、
おすすめの便利なシステムです。

検索結果で、希望のお部屋が見つからない方!ご安心ください。
お手数ですが、こちらの【賃貸物件お探しサービス】よりお気軽にお問合せください。

毎日、最新の物件情報を登録しておりますが、情報量が多く、日々変化する為、
全てを登録する事が出来ません!
★是非、貴方のこだわりをお聞かせください♪